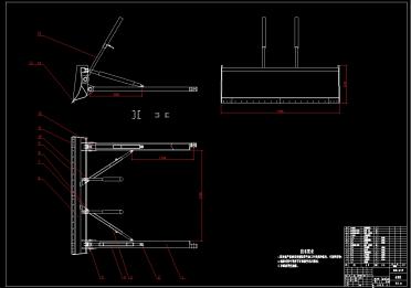
飞锤支架的夹具设计-机械夹具毕业设计资料
毕业设计是每个大学生在毕业前必须完成的一个教学环节,是对我们所学专业的一个综合测试,也是对我们毕业生做的一次具体的、重要的考验。此设计密切结合高等学校的办学宗旨。已检测我们在学习和实习过程中对所学知识的掌握程度和运用水平。同时在毕业设计中与同学互相帮助,一起去图书馆查阅毕业设计中需要得一些相关资料,共同探讨课程设计中出现的问题,体现了同学之间的凝聚力,增进了同学之间的友谊,加强了与老师的知识探讨.
作为机械类专业的学生不能仅以学好课本上的理论知识而满足,如果不懂的运用他们,学再多的理论知识也毫无...